Floorplan for Wooding Drive, Lawley
EPC Graph for Wooding Drive, Lawley

4 Bedroom House- For sale (Freehold) Wooding Drive, Lawley - £307,500

4 2 2

Located in a popular and well-established area of Lawley, this generously proportioned four-bedroom detached property offers an excellent opportunity for buyers seeking a family home with scope to add value through cosmetic updating. The property benefits from a private driveway and single...

Key Features

  • Detached Family Home In Good Lawley Location
  • Two Reception Rooms, Kitchen Diner & Utility Room
  • W.C, En suite & Family Bathroom
  • Four Bedrooms
  • Garage & Driveway With Electric Charging Point
  • EPC - C
  • Council Tax Band: D
  • Parking: Garage
Located in a popular and well-established area of Lawley, this generously proportioned four-bedroom detached property offers an excellent opportunity for buyers seeking a family home with scope to add value through cosmetic updating.

The property benefits from a private driveway and single garage, providing ample off-road parking. Internally, the accommodation comprises a welcoming entrance hallway, two spacious reception rooms, a fitted kitchen diner , utility area, and a ground floor WC. Upstairs, there are four well-sized bedrooms—one with en-suite facilities—and a family bathroom.A good sized garden can be found to the rear of the property.



While the home has been well maintained over the years, it would now benefit from modernisation, allowing prospective buyers to personalise and enhance the interior to their own taste.

Situated in a desirable residential location, the property is within easy reach of local schools, shops, and transport links, making it ideal for families or commuters alike.

Offered with no onward chain, this property presents a fantastic opportunity to create a stylish and comfortable home in one of Lawley’s most convenient settings.

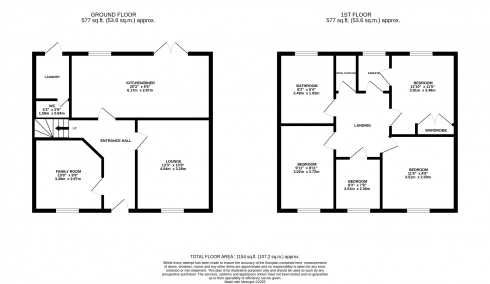
Entrance Hallway
With ceiling light point and doors to all ground floor rooms.
Lounge - 13'3 x 10'9
With ceiling light point and window to front aspect.
Reception Room ( Play Room ) - 10'9 x9'9
With ceiling light point and window to front aspect.
Kitchen / Diner - 20'3 x 9'5
With a range of wall mounted and base units, sink and drainer, window and patio doors to rear garden aspect, door to :
Utility Room
With space and plumbing for white goods, door to rear garden and further door to :
W.C
With handwash basin.
Staircase to First Floor Landing
With ceiling light point and doors to all first floor rooms.
Bedroom - 12'10 x 11'5
With ceiling light point and window to rear aspect, door to :
En Suite Shower Room
With shower, W.C and hadwash basin, window to rear aspect.
Bedroom - 11'6 x 8'6
With ceiling light point and window to front aspect.
Bedroom - 9'11 x 8'11
With ceiling light point and window front aspect.
Bedroom - 8'3 x 7'9
With ceiling light point and window to front aspect.
Bathroom - 8'2 x 6'4
With bath and overhead shower, handwash basin and W.C
Good Sized Rear Garden
Mainly laid to lawn with decked and paved areas and gated access to :
Single Garage & Driveway
With electric vehicle charger.

Location

Similar Properties