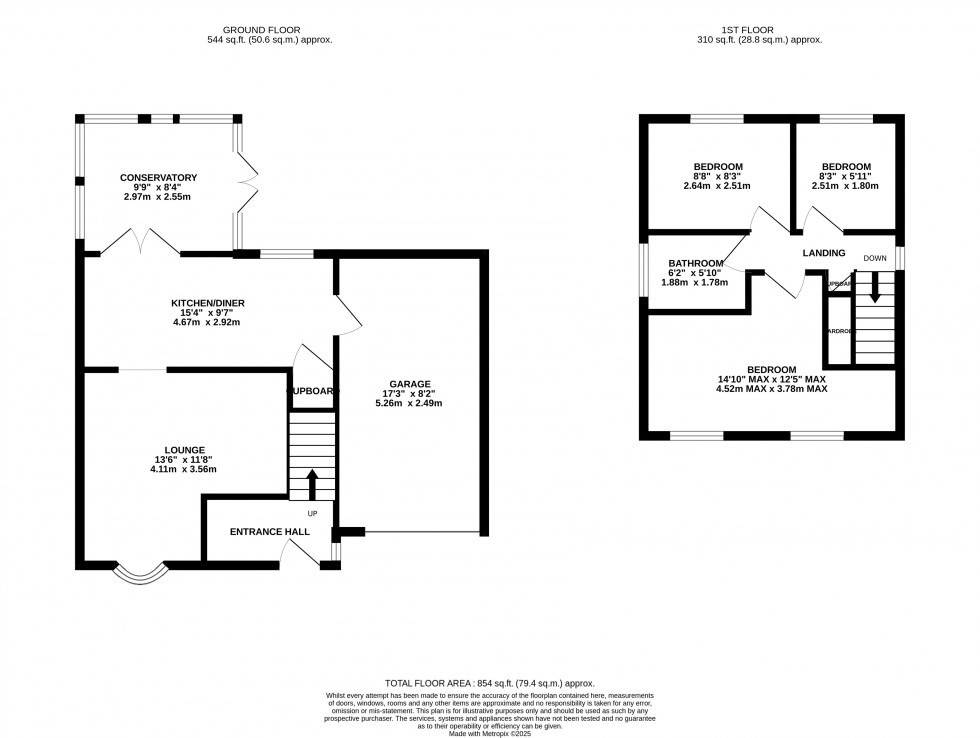
Floorplan for Chetwynd Close, Stirchley
EPC Graph for Chetwynd Close, Stirchley

3 Bedroom House- For sale (Freehold) Chetwynd Close, Stirchley - £269,450

3 1 1

Charming 3-Bedroom Detached Home with Expansive Garden – Stirchley, Telford Nestled in the heart of the popular residential area of Stirchley, Telford, this well-presented 3-bedroom detached house offers an excellent opportunity for families and professionals alike. Boasting a generous plot...

Key Features

  • Detached Family Home on Very Large Plot
  • Lounge, Kitchen Diner & Conservatory
  • Three Bedrooms
  • Family Bathroom
  • Large Garage & Driveway
  • EPC - D - No Upward Chain
  • Council Tax Band: B
  • Parking: Garage
Charming 3-Bedroom Detached Home with Expansive Garden – Stirchley, Telford

Nestled in the heart of the popular residential area of Stirchley, Telford, this well-presented 3-bedroom detached house offers an excellent opportunity for families and professionals alike. Boasting a generous plot with an exceptionally large garden to the side, this property combines comfortable living with impressive outdoor space — ideal for entertaining, gardening, or future development potential (subject to planning permission).

The accommodation comprises a welcoming entrance hall, spacious lounge with plenty of natural light, a seperate dining area, and a modern fitted kitchen with ample storage. Upstairs features three well-proportioned bedrooms and a family bathroom.

Externally, the standout feature is the expansive garden — a rare find in this location — providing a private, peaceful setting with potential for landscaping, extension ( subject to planning ) or recreational use. The property also benefits from a driveway with off-road parking and a single garage.

Located within easy reach of local schools, shops, and transport links, including Telford Town Centre and the M54, this home offers a perfect balance of convenience and tranquillity.

Entrance Hallway
With ceiling light point and door to :
Lounge - 13'6 x 11'8
With ceiling light point and arched access to :
Kitchen Diner -14'4 x 9'7
With a range of wall mounted and base units, ceiling light point, open access to dining area, door to useful cupboard and door to garage, patio doors to :
Conservatory - 9'9 x 8'4
Of brick built base with underfloor heating, patio doors to rear garden.
Carpeted staircase to first floor landing.
With ceiling light point and doors to all first floor rooms.
Bedroom One - 14'0 max x 12'5 max
With ceiling light point, built in wardrobes and two windows to front aspect.
Bedroom Two - 8'8 x 8'3
With ceiling light point and window to rear aspect.
Bedroom Three - 5'11 x 8'3
With ceiling light point and window to rear aspect.
Bathroom - 6'2 x 5'10
With bath , W.C and handwash basin.
Rear Garden
Mainly laid to lawn with paved patio areas, mature plants and trees, garden shed and fencing to all sides.
Front and Side Gardens.
Single Garage - 17'3 x 8'2
With utility area to the rear, door to kitchen and further door to rear garden.
Driveway
With outside lighting.


Whilst every attempt has been made to ensure the accuracy of the floor plan contained here, measurements of doors, windows, rooms and any other items are approximate and no responsibility is taken for any error, omission, or mis-statement. This plan is for illustrative purposes only and should be used as such by any prospective purchaser. *Maximum measurements are taken at the largest point of the room.
The services, systems and appliances shown have not been tested and no guarantee as to their operability or efficiency can be given. We have not tested the services, equipment or appliances in this property; also, please note that any fixture, fitting or apparatus not specifically referred to in these details, is not included in the sale, even if they appear in any internal photographs. You are advised to commission appropriate investigations and ensure your solicitor verifies what is included in the sale, before entering a legal commitment to purchase.
While we make our sales details accurate and reliable, Foden Property does not give, nor does any officer or employee have authority to give any warranty, as to the accuracy of any statement, written verbal or visual. You should not rely on any information contained in these details when deciding whether to view or purchase.







Location

Similar Properties