SOLDSTC
SOLDSTC
SOLDSTC
SOLDSTC
SOLDSTC
SOLDSTC
SOLDSTC
SOLDSTC
SOLDSTC
SOLDSTC
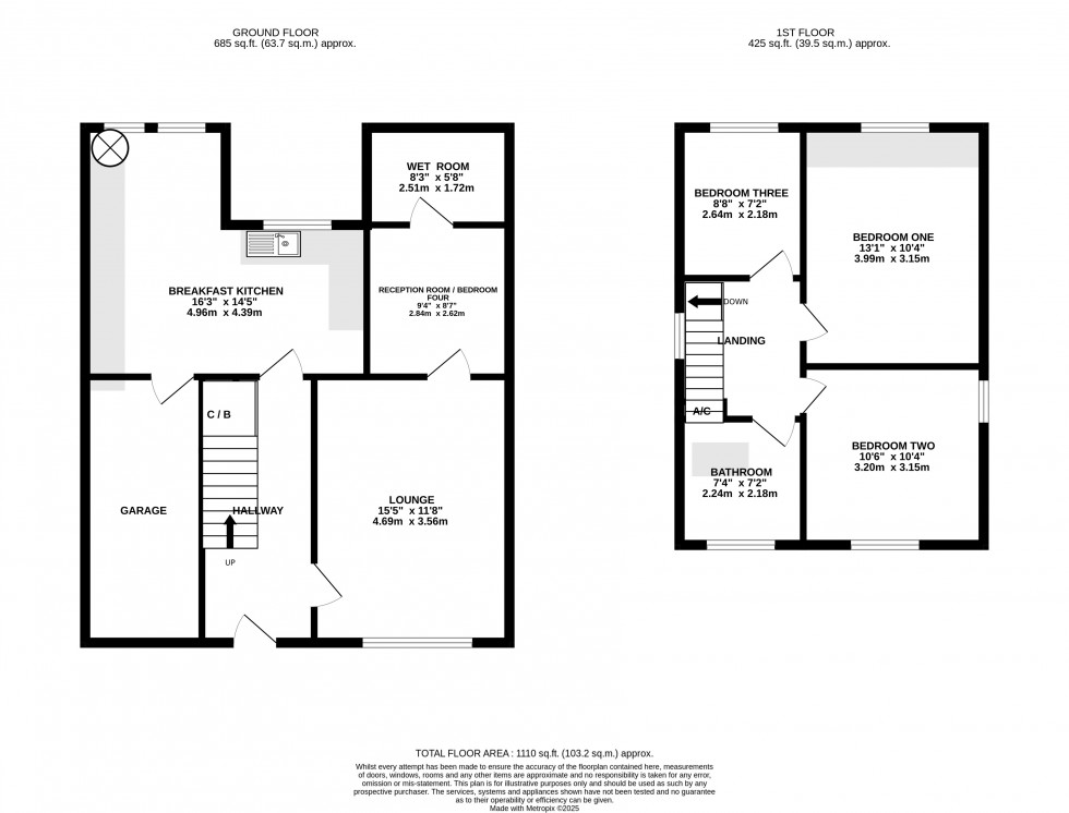
Floorplan for Haygate Road, Wellington
EPC Graph for Haygate Road, Wellington

3 Bedrooms House- SSTC (Freehold) Haygate Road, Wellington - £220,000

3 1 1

**NO UPWARD CHAIN ** UNEXPECTEDLY BACK ON THE MARKET ** In need of modernisation, this semi detached property offers a wonderful opportunity to create a fabulous family home. Internal accommodation includes Lounge, dining / reception room, L- Shaped kitchen diner and wet room to the ground floor...

Key Features

  • Freehold Semi Detached Family Home
  • L- Shaped Kitchen Diner , Lounge & Further Reception Room
  • Three Bedroom
  • Ground Floor Wet Room & First Floor Shower Room
  • Garage & Driveway
  • EPC - D, Council Tax Band C
  • Council Tax Band: C
  • Parking: Garage
**NO UPWARD CHAIN ** UNEXPECTEDLY BACK ON THE MARKET **
In need of modernisation, this semi detached property offers a wonderful opportunity to create a fabulous family home.
Internal accommodation includes Lounge, dining / reception room, L- Shaped kitchen diner and wet room to the ground floor whilst the first floor boasts three good sized bedrooms and a family bathroom.
Externally the property offer gardens to both the front and rear and parking is accommodated by a single garage and driveway parking.
**Early Viewing Is Highly Recommended **

Entrance Hallway
With ceiling light point and doors to ground floor rooms.
Lounge - 15'5 x 11'8
With ceiling light point , window to front aspect and door to :
Reception / Dining / Bedroom - 9'4 x 8'7
With ceiling light point and door to :
Wet Room - 8'3 x 5'8
With shower, W.C and handwash basin, window and door to rear aspect.
L-Shaped Kitchen / Diner 16'3 x 14'5
With a range of wall mounted and base units, sink and drainer, inset ceiling spots, window and door to rear garden aspect.
Carpeted Staircase to First Floor Landing
With ceiling light point and doors tall first floor rooms.
Bedroom - 13'1 x 10'4
With window to rear aspect.
Bedroom - 10'6 x 10'4
With window to front aspect
Bedroom - 8'8 x 7'2
With window to rear aspect.
Shower Room - 7'4 x 7'2

Whilst every attempt has been made to ensure the accuracy of the floor plan contained here, measurements of doors, windows, rooms and any other items are approximate and no responsibility is taken for any error, omission, or mis-statement. This plan is for illustrative purposes only and should be used as such by any prospective purchaser. *Maximum measurements are taken at the largest point of the room.
The services, systems and appliances shown have not been tested and no guarantee as to their operability or efficiency can be given. We have not tested the services, equipment or appliances in this property; also, please note that any fixture, fitting or apparatus not specifically referred to in these details, is not included in the sale, even if they appear in any internal photographs. You are advised to commission appropriate investigations and ensure your solicitor verifies what is included in the sale, before entering a legal commitment to purchase.
While we make our sales details accurate and reliable, Foden Property does not give, nor does any officer or employee have authority to give any warranty, as to the accuracy of any statement, written verbal or visual. You should not rely on any information contained in these details when deciding whether to view or purchase.

Location